Beschrijving

Sfeervolle en verrassend ruime bovenwoning, verdeeld over twee verdiepingen, met een zonnig dakterras in de geliefde Tuinwijk!

Zodra je binnenkomt, voel je het: dit is een woning waar licht, ruimte en karakter samenkomen. De woning beschikt over een lichte woonkamer met openslaande deuren naar het balkon, een aparte keuken en een praktische werkhoek. Daarnaast zijn er twee ruime slaapkamers, een extra werkkamer, een badkamer met douche én een royaal dakterras waar je heerlijk kunt ontspannen.

Locatie.
Wonen in Tuinwijk betekent wonen in één van de meest geliefde wijken van Utrecht. Een vriendelijke en rustige wijk met het Griftpark op loopafstand, evenals diverse restaurants, supermarkten en winkels. De binnenstad en het Centraal Station bereik je binnen 10 minuten met de fiets of het openbaar vervoer. Bovendien is de woning gunstig gelegen ten opzichte van de uitvalswegen, wat zorgt voor extra comfort en bereikbaarheid.

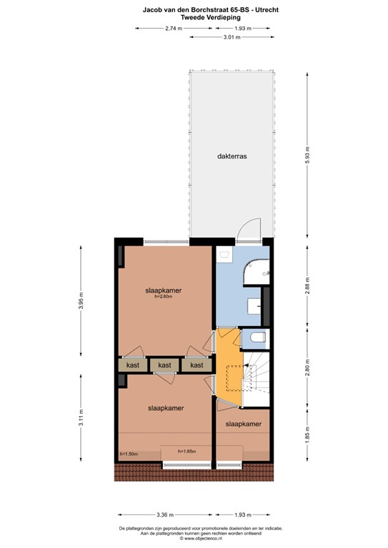
We nemen je graag mee door de woning.
Binnenkomst in hal met trappenhuis. Het trappenhuis biedt toegang tot de eerste en tweede verdieping. 

Vanaf de overloop op de eerste verdieping betreedt je het lichte leefgedeelte met balkon, de ruime keuken en een apart toilet. Het leefgedeelte kenmerkt zich door de raampartijen aan de voorzijde, die zorgen voor een prettige lichtinval, en de openslaande deuren aan de achterzijde die toegang geven tot het zonnige balkon op het zuiden. Dankzij de omvang en de praktische indeling is de ruimte veelzijdig te gebruiken. De ruimte biedt volop mogelijkheden voor een royale zithoek en een sfeervol eetgedeelte, ideaal om gasten te ontvangen. Aan de voorzijde is bovendien een gedeelte dat zich uitstekend leent als werk- of studeerplek.  De woonkamer is voorzien van een eikenhouten lamelparket. De keuken bevindt zich aan de achterzijde van de woning en is voorzien van alle benodigde inbouwapparatuur, waaronder een koelkast, vriezer, oven vaatwasser, 4-pits kookplaat en afzuigkap. Vanuit de keuken heb je ook toegang tot het balkon.

Via het trappenhuis bereik je de tweede verdieping, waar de overloop doorgang biedt naar drie slaapkamers, een badkamer, dakterras en een apart toilet. Aan de voorzijde liggen twee slaapkamers, waarvan één ruim en uitermate geschikt als logeer- of kinderkamer. De tweede kamer is ideaal als lichte, comfortabele werkkamer. Aan de achterzijde bevindt zich de royale master bedroom en de badkamer. De badkamer is netjes uitgevoerd en voorzien van een douche, wastafel met lademeubel, wasmachineaansluiting en als kers op de taart: toegang tot een riant dakterras gelegen op het zuiden. Hier geniet je op elk moment van de dag van de zon, of je nu rustig wakker wordt met een kop koffie of de dag afsluit met een goed glas wijn.

Kortom: Een karaktervolle en lichte bovenwoning met zonnige buitenruimte, gelegen op een toplocatie in Utrecht. Een plek waar je elke dag met plezier thuiskomt.

Kenmerken:
- Vraagprijs €550.000,- k.k.;
- Bouwjaar 1926;
- Dakbedekking vervangen in 2024;
- Oppervlakte van 90 m2;
- Balkon van 2,5 m2;
- Dakterras van 18 m2;
- Energielabel D;
- Actieve en professionele VvE;
- VvE bijdrage: €108,60 per maand;
- Notaris keuze koper (omgeving Utrecht);

Alle moeite is genomen om de informatie in de aanmelding zo accuraat en actueel mogelijk weer te geven. Fouten zijn echter nooit uit te sluiten. Vertrouw daarom niet alleen op deze informatie, maar controleer bij de aankoop van deze woning de zaken die uw beslissing zouden kunnen beïnvloeden. Verkoper behoudt zich ten allen tijde nadrukkelijk het recht van gunning voor. De koopovereenkomst wordt gesloten op basis van een VBO koopakte, waarin extra clausules worden opgenomen onder andere (indien van toepassing): de Meetinstructie, het Energielabel, nutsbedrijven, ouderdomsclausule en 'As is, Where is', niet-zelfbewoningsclausule.

U kunt via ons kantoor een afspraak maken voor een bezichtiging. Wij kijken er naar uit u te mogen rondleiden!

Kenmerken