Verkocht
Verkocht: Dominicushof 18, 4133 AN Vianen
Beschrijving
Wonen in een kindvriendelijke en groene omgeving? Deze royale eengezinswoning met voor- en achtertuin is toe aan een volledige renovatie. Een unieke kans om te wonen naar geheel eigen smaak.Locatie
Vianen is gelegen in het midden van Nederland met de Utrecht stad op 15 minuten rijden afstand. Het betreft van oudsher een middeleeuwse stad. Vianen is levendig met vele voorzieningen en culturele evenementen. Naast het historische centrum met winkels, horecagelegenheden, basisscholen en kinderdagverblijven, zijn er talloze recreatiemogelijkheden zoals wandelen en fietsen door de Uiterwaarden, tennis, zwemmen, hockey, voetbal, volleybal, paardrijden en watersport. Het openbaar vervoer en de belangrijke uitvalswegen (A2 en A27) zijn goed en snel bereikbaar. Kortom: wonen in centraal Nederland met alle gemakken en het groen op korte afstaand.
Indeling:
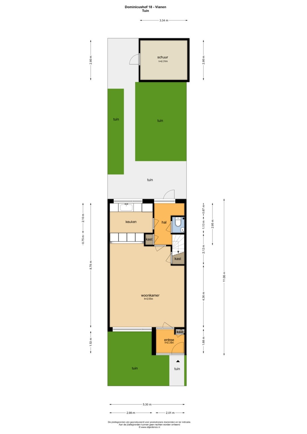
Entree met hal en meterkast. Toegang tot de lichte woonkamer met half open verbinding naar de keuken. Vanuit de woonkamer toegang tot een tweede hal, vanwaar het toilet, het trappenhuis en de ruime achtertuin bereikbaar zijn.
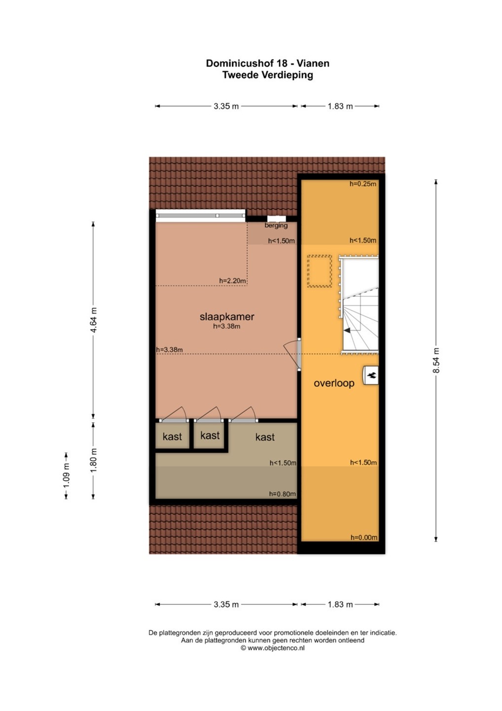
Via het trappenhuis toegang tot de eerste verdieping. De overloop biedt toegang tot drie slaapkamers en een badkamer. Aan de voorzijde bevinden zich twee kleinere slaapkamers, aan de achterzijde een grote slaapkamer. De badkamer is voorzien van een douche, toilet en wastafel. Middels een vaste trap toegang tot de zolderverdieping met een provisieruimte waarin de CV-installatie is geplaatst. De vierde slaapkamer is gelegen op de zolder en beschikt over veel inbouwkasten en een ruime berging aan de achterzijde.
De woning beschikt over een royale voor- en achtertuin. De achtertuin, gesitueerd op het zonnige zuiden, biedt veel zonlicht en is voorzien van een stenen berging. De achtertuin beschikt over een achterom.
Kenmerken:
- Vraagprijs €395.000,- k.k.;
- Energielabel C;
- Bouwjaar 1972;
- Oppervlakte van 125 m2;
- Riante voor- en achtertuin met achterom;
- Stenen berging;
- 4 slaapkamers;
- Voldoende parkeergelegenheid;
- Kindvriendelijke buurt met veel groen;
- Notaris keuze verkoper, Van Grafhorst Notarissen Utrecht;
- Aanvaarding in overleg.
Alle moeite is genomen om de informatie in de aanmelding zo accuraat en actueel mogelijk weer te geven. Fouten zijn echter nooit uit te sluiten. Vertrouw daarom niet alleen op deze informatie, maar controleer bij de aankoop van deze woning de zaken die uw beslissing zouden kunnen beïnvloeden. Verkoper behoudt zich ten allen tijde nadrukkelijk het recht van gunning voor. De koopovereenkomst wordt gesloten op basis van een VBO koopakte, waarin extra clausules worden opgenomen onder andere (indien van toepassing): de Meetinstructie, het Energielabel, nutsbedrijven, ouderdomsclausule en 'As is, Where is', niet-zelfbewoningsclausule.
U kunt via ons kantoor een afspraak maken voor een bezichtiging. Wij kijken er naar uit u te mogen rondleiden!
Kenmerken
| Overdracht | |
|---|---|
| Referentienummer | 00336 |
| Vraagprijs | € 395.000,- k.k. |
| Status | Verkocht |
| Aanvaarding | In overleg |
| Aangeboden sinds | Donderdag 29 mei 2025 |
| Laatste wijziging | Vrijdag 1 augustus 2025 |
| Bouw | |
|---|---|
| Type object | Woonhuis, eengezinswoning, tussenwoning |
| Soort bouw | Bestaande bouw |
| Bouwperiode | 1929 |
| Dakbedekking | Dakpannen |
| Type dak | Zadeldak |
| Oppervlaktes en inhoud | |
|---|---|
| Perceeloppervlakte | 142 m² |
| Woonoppervlakte | 125,4 m² |
| Inhoud | 426 m³ |
| Oppervlakte externe bergruimte | 9,4 m² |
| Indeling | |
|---|---|
| Aantal bouwlagen | 3 |
| Aantal kamers | 5 (waarvan 4 slaapkamers) |
| Aantal badkamers | 1 (en 1 apart toilet) |
| Locatie | |
|---|---|
| Ligging | Aan rustige weg In woonwijk |
| Tuin | |
|---|---|
| Type | Voortuin |
| Oriëntering | Oosten |
| Staat | Normaal |
| Tuin 2 - Type | Achtertuin |
| Tuin 2 - Hoofdtuin | Ja |
| Tuin 2 - Oriëntering | West |
| Tuin 2 - Heeft een achterom | Ja |
| Tuin 2 - Staat | Normaal |
| Energieverbruik | |
|---|---|
| Energielabel | C |
| Energie-index | 1,8 |
| CV ketel | |
|---|---|
| Warmtebron | Gas |
| Uitrusting | |
|---|---|
| Warm water | CV-ketel |
| Verwarmingssysteem | Centrale verwarming |
| Badkamervoorzieningen | Ligbad Toilet Wastafel |
| Tuin aanwezig | Ja |
| Heeft schuur/berging | Ja |
| Kadastrale gegevens | |
|---|---|
| Kadastrale aanduiding | Vianen D 1913 |
| Perceeloppervlakte | 142 m² |
| Omvang | Geheel perceel |
| Eigendomsituatie | Eigen grond |