Verkocht
Verkocht: Agaatlaan 9, 3523 CN Utrecht
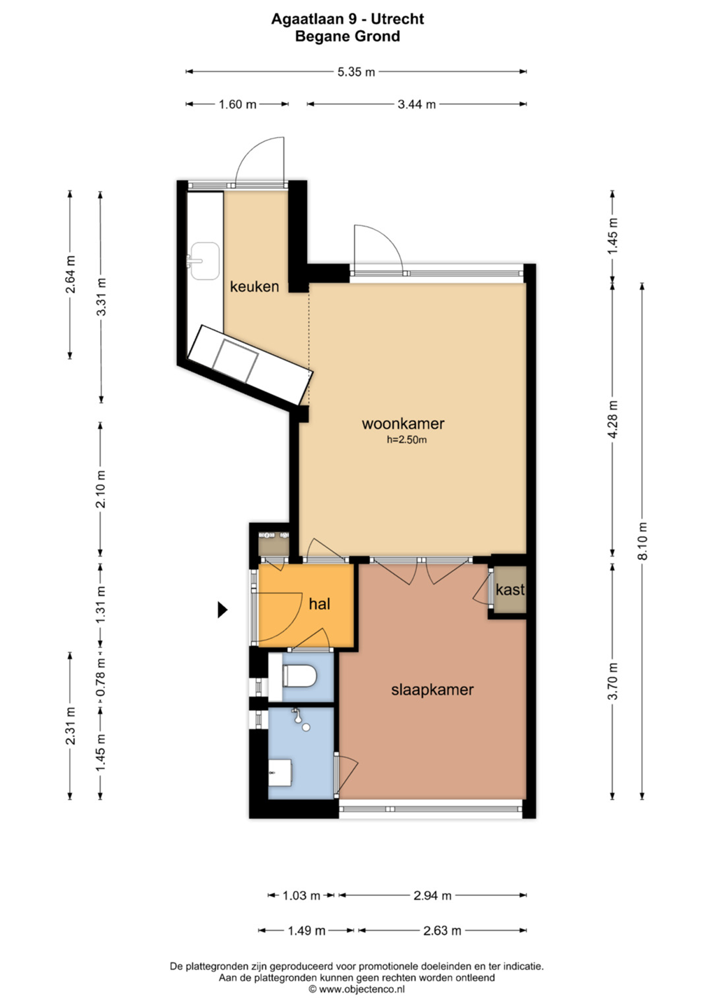
Beschrijving
Ben je op zoek naar een instapklare woning met een fijne tuin en veel licht? Dan is dit een perfecte start. Wij nemen je graag mee door deze woning en vertellen je met plezier meer over de omgeving.De woning – ideaal voor starters.
Bij aankomst valt direct de verzorgde voortuin op. Door de groene beplanting zit je hier lekker privé. De entree bevindt zich aan de rustige zijkant van het complex, wat zorgt voor een prettige en beschutte binnenkomst.
In de hal heb je toegang tot het moderne toilet en de woonkamer. Alles is netjes afgewerkt. De woonkamer is heerlijk licht dankzij de grote raampartijen aan de achterzijde. De ruimte voelt open aan en is praktisch in te delen, ideaal als je hier je eerste eigen plek helemaal naar smaak wilt inrichten. Vanuit de woonkamer kijk je uit op de ruime achtertuin, wat zorgt voor een vrij en rustig gevoel. De halfopen keuken staat in verbinding met de woonkamer. Zo blijf je in contact met je bezoek terwijl je kookt. De keuken is gemoderniseerd en voorzien van een elektrische kookplaat met afzuigkap, oven, vaatwasser, koelkast en voldoende kastruimte – alles wat je nodig hebt om direct aan de slag te kunnen.
Door de openslaande deuren vanuit de woonkamer bereik je de slaapkamer. Ook hier zorgen grote ramen voor veel daglicht. De vaste kast biedt handige extra opbergruimte, iets wat in een starterswoning altijd welkom is. De moderne badkamer is recent gerenoveerd en uitgerust met een inloopdouche met glazen wand, een strak wastafelmeubel, handradiator en een raam voor natuurlijke ventilatie.
De tuin – jouw eigen buitenruimte
Wat deze woning écht onderscheidt, is de royale achtertuin van circa 45 m² op het zuiden. Dit is een zeldzaamheid. Dankzij de perfecte zonligging geniet je hier vrijwel de hele dag van natuurlijk licht en warmte. Het is dé plek voor lange zomeravonden, gezellige diners met vrienden of een ontspannen moment voor jezelf in de zon. De stenen berging achterin biedt volop praktische mogelijkheden en is voorzien van de centrale verwarming en aansluitingen voor wasmachine en droger. Alles slim weggewerkt, zodat je woonruimte optimaal benut blijft. De achterom zorgt bovendien voor extra gemak: ideaal voor het stallen van fietsen of het eenvoudig bereiken van de tuin zonder door het huis te hoeven. Een perfect gesitueerde, functionele én sfeervolle buitenruimte die zeldzaam is in deze prijsklasse en die je als een echte meerwaarde zult ervaren.
Omgeving Tolsteeg - Rotsoord.
De wijk is ontstaan in de jaren ’50 en heeft zich sindsdien sterk ontwikkeld. Wat ooit een industrieel gebied was, is nu een bruisende, creatieve buurt waar oud en nieuw op unieke wijze samenkomen. Langs de Vaartsche Rijn (ook bekend als Jutfaseweg) zijn diverse mooie ontwikkelingen gerealiseerd, waarbij industrieel erfgoed behouden blijft. Zo is de watertoren getransformeerd tot restaurant en heeft de oude Pastoefabriek een nieuwe functie gekregen als verzamelplek voor onderwijs, creatieve ondernemers en horeca. Deze mix maakt de wijk tot een van de meest gewilde en levendige plekken van Utrecht.
Ook qua ligging en bereikbaarheid scoort de wijk hoog: de binnenstad met het Ledig Erf, de Oudegracht en de Domtoren is eenvoudig per fiets bereikbaar, terwijl winkelcentrum Smaragdplein op loopafstand is voor dagelijkse boodschappen. Station Vaartsche Rijn ligt op minder dan tien minuten lopen en met de ringwegen en het openbaar vervoer ben je binnen no time overal. Parkeren is gemakkelijk te regelen via een gemeentelijke vergunning. Kortom: wonen in deze wijk betekent leven op een toplocatie, met alles binnen handbereik én optimale bereikbaarheid voor werk, studie of uitjes.
Ben jij enthousiast geworden van deze frisse, instapklare woning met veel licht, een zonnige tuin en alles wat je als starter nodig hebt om comfortabel te wonen? Een afspraak tot het bezichtigen van deze woning is gemakkelijk te maken met ons kantoor. Wij kijken er naar uit je te mogen rondleiden!
Kenmerken:
- Vraagprijs: € 295.000,- k.k.
- Bouwjaar: 1958;
- Actieve en kleinschalige Vereniging van Eigenaars;
- Bijdrage VvE € 150,- per maand;
- Groepenkast uitgebreid in 2020;
- Keuken renovatie 2021;
- Badkamer en toilet renovatie 2022;
- Volledig voorzien van een laminaat vloer;
- Kunststofkozijnen voor- en achterzijde;
- Energielabel D;
- Oplevering per omgaande;
- Notaris keuze Hoekstra en Partners te Utrecht.
Goed om te weten: hoewel deze informatie met zorg is samengesteld, kunnen hieraan geen rechten worden ontleend. Controleer de gegevens altijd zelf. De verkoper behoudt zich het recht voor om de woning naar eigen inzicht te gunnen. De koopovereenkomst wordt opgesteld volgens de VBO-standaard, inclusief clausules zoals: Meetinstructie, Energielabel, asbest clausule, nutsvoorzieningen, niet-zelfbewoningsclausule en de 'As is, Where is'-clausule.
Kenmerken
| Overdracht | |
|---|---|
| Referentienummer | 00411 |
| Vraagprijs | € 295.000,- k.k. |
| Servicekosten | € 150,- |
| Inrichting | Ja |
| Inrichting | Gestoffeerd |
| Status | Verkocht |
| Aanvaarding | In overleg |
| Aangeboden sinds | Dinsdag 3 maart 2026 |
| Laatste wijziging | Donderdag 26 maart 2026 |
| Bouw | |
|---|---|
| Type object | Appartement, benedenwoning |
| Woonlaag | 1e woonlaag |
| Soort bouw | Bestaande bouw |
| Bouwperiode | 1958 |
| Dakbedekking | Dakpannen |
| Type dak | Zadeldak |
| Isolatievormen | Grotendeels dubbel glas HR-glas |
| Oppervlaktes en inhoud | |
|---|---|
| Woonoppervlakte | 36,3 m² |
| Inhoud | 137 m³ |
| Oppervlakte externe bergruimte | 5,4 m² |
| Indeling | |
|---|---|
| Aantal bouwlagen | 1 |
| Aantal kamers | 2 (waarvan 1 slaapkamer) |
| Aantal badkamers | 1 (en 1 apart toilet) |
| Locatie | |
|---|---|
| Ligging | Aan rustige weg In woonwijk |
| Tuin | |
|---|---|
| Type | Achtertuin |
| Hoofdtuin | Ja |
| Oriëntering | Zuiden |
| Heeft een achterom | Ja |
| Staat | Goed onderhouden |
| Tuin 2 - Type | Voortuin |
| Tuin 2 - Oriëntering | Noorden |
| Tuin 2 - Staat | Goed onderhouden |
| Energieverbruik | |
|---|---|
| Energielabel | D |
| Energie-index | 2,4 |
| CV ketel | |
|---|---|
| CV ketel | Intergas Kompakt HRE 24/18 a |
| Warmtebron | Gas |
| Bouwjaar | 2022 |
| Combiketel | Ja |
| Eigendom | Eigendom |
| Uitrusting | |
|---|---|
| Warm water | CV-ketel |
| Verwarmingssysteem | Centrale verwarming |
| Badkamervoorzieningen | Inloopdouche Wastafel Wastafelmeubel |
| Tuin aanwezig | Ja |
| Beschikt over een internetverbinding | Ja |
| Heeft schuur/berging | Ja |
| Vereniging van Eigenaren | |
|---|---|
| Ingeschreven bij de KvK | Ja |
| Jaarlijkse vergadering | Ja |
| Periodieke bijdrage | Ja |
| Reservefonds | Ja |
| Meer jaren onderhoudsplan | Ja |
| Opstal verzekering | Ja |
| Kadastrale gegevens | |
|---|---|
| Kadastrale aanduiding | Tolsteeg B 2625 |
| Omvang | Appartementsrecht of complex |
| Eigendomsituatie | Eigen grond |
| Indexnummer | 9 |